Υλικά :
Ένα τμήμα κόντρα πλακέ σημύδα Λετονίας πάχους 15mm με πλάτος 320mm και μήκος 538mm (10mm μεγαλύτερη από την αντίστοιχη των 10 πλαισίων)
Δύο τμήματα δοκαράκι από έλατο 35mm X 20mm μήκους 520mm
Ένα
τμήμα δοκαράκι από έλατο 35mm X 20mm
μήκους 330mm
Δύο τμήματα δοκαράκι από έλατο 40mm X 40mm με μήκος 520mm
Ένα
πηχάκι από έλατο 20mm X 20mm μήκους
310mm, ξυλόβιδες 35Χ3,5mm και
30Χ3,0mm ,κόλλα ακρυλική ,δίχαλα 35 mm
Όλες ο εργασίες για την κατασκευή μιας κλειστής βάσης 8 πλαισίων είναι
πανομοιότυπες με αυτές για την κατασκευή κλειστής βάσης 10 πλαισίων Β.1.1 . Αυτό
που αλλάζει είναι οι διαστάσεις των υλικών
Προετοιμασία:
Στο τμήμα από κόντρα πλακέ πάχους 15mm θα αφαιρέσουμε με ένα
ρούτερ ένα τμήμα 7mm X 7mm κατά μήκος της μίας πλευράς του , διάστασης
320mm, για να ορίσουμε την σανίδα
πτήσης (σχέδιο).
Κατεργαζόμαστε τα δοκαράκια από έλατο διαστάσεων 35mm x
20mm που θα πλαισιώσουν το τμήμα από
κόντρα πλακέ αφαιρώντας από αυτά
επιφάνεια 10mm X 15mm όπως εικονίζετε στα πιο κάτω σχέδια.
Τα τελικά μέτρα των τμημάτων αυτών θα είναι :
Ένα δοκαράκι με γωνία 45ο και στις δύο του άκρες ( το πίσω
τμήμα της βάσης ) με διαστάσεις 340mm στην μεγάλη του πλευρά και 300mm στην μικρή πλευρά του (πιο πάνω σχέδιο) και δύο δοκαράκια (τα πλαϊνά) με την μια τους
άκρη κομμένη με 45ο γωνία ,με διαστάσεις πλευρών 508mm και 488mm αντίστοιχα.
Στα δύο δοκαράκια
40Χ40mm με μήκος 520mm , θα αφαιρέσουμε εάν επιθυμούμε , ένα τμήμα
10Χ10mm με γωνία 45ο , δημιουργώντας ένα φάλτσο στην πλευρά που θα έρχεται σε
επαφή με το έδαφος
Τελευταία εργασία στην προετοιμασία των τμημάτων της βάσης
είναι η κατεργασία του τμήματος από πηχάκι 20Χ20mm που προορίζετε για την είσοδο . Το
τμήμα αυτό μήκους 310mm
θα το κόψουμε με γωνία 45ο δημιουργώντας τα τρία μέρη της εισόδου , δύο σταθερά
κι ένα κινητό .
Αν επιλέξουμε το άνοιγμα της εισόδου να έχει μήκος 130mm τότε θα σημειώσουμε και θα
κόψουμε το πηχάκι αυτό όπως φαίνεται στο πιο κάτω σχέδιο .
Το αρχικό μήκος του
τμήματος ήταν 310mm ,
μετά την κοπή τα τρία τμήματα που θα σχηματιστούν θα έχουν συνολικό μήκος 300mm , όσο το εσωτερικό πλάτος της βάσης .
Συναρμολόγηση :
Θα ξεκινήσουμε την συναρμολόγηση με την σύνδεση της επιφάνειας από κόντρα πλακέ
σημύδας με τα τρία δοκαράκια που την πλαισιώνουν . Θα απλώσουμε κόλλα και στις
δύο εσωτερικές πλευρές κάθε τμήματος ,
στα σημεία που θα εφάπτονται με την επιφάνεια από κόντρα πλακέ και θα τα
τοποθετήσουμε στην θέση τους καρφώνοντας τα , το ένα μετά το άλλο δίνοντας
σημασία στην καλή εφαρμογή τους .
Η σύνδεση των τμημάτων θα γίνει με το καρφωτικό ( αέρος ή
ηλεκτρικό ) και χρησιμοποιώντας δίχαλα μήκους 35mm , προσέχοντας την ασφάλεια μας.
Με ένα μολύβι θα σημειώσουμε μια ευθεία στο
πλάι κάθε τμήματος , που θα απέχει 7,5mm από την πλευρά που προορίζετε να είναι στο κάτω μέρος της
βάσης . Σε αυτήν την ευθεία θα καρφώσουμε το πρώτο δίχαλο σε απόσταση 10mm από τα άκρα του τμήματος
και θα συνεχίσουμε να καρφώνουμε ανά 50mm περίπου . (πιο πάνω
σχέδιο)
Με τον τρόπο που σημαδέψαμε πριν τα δίχαλα θα εισχωρήσουν
στην μέση του πάχους του τμήματος από κόντρα πλακέ .
Στην συνέχεια θα καρφώσουμε τα τμήματα αυτά με τα ίδια
δίχαλα από την πάνω πλευρά των ξύλινων τμημάτων από έλατο, ξεκινώντας σε
απόσταση 15 ή 20mm από
την άκρη του κάθε τμήματος (για να μην συμπέσουμε με τα προηγούμενα) και συνεχίζοντας ανά 50 ή 60mm
σε όλο το μήκος τους (σχέδιο).
Πρέπει να έχουμε στο μυαλό μας πως η επιφάνεια από κόντρα
πλακέ ξεκινά ένα εκατοστό από την έξω πλευρά του τμήματος και προς την βάση ,
για αυτόν τον λόγο θα τοποθετούμε το
δίχαλο με κλίση του καρφωτικού προς την εσωτερική πλευρά της βάσης . (σχέδιο)
Σειρά έχει η τοποθέτηση των πλαϊνών τμημάτων της εισόδου
στην βάση και το βίδωμα τους στην επιφάνεια από κόντρα πλακέ . Στην τοποθέτηση
αυτών θα μας βοηθήσει να κρατήσουμε στην
ευθεία τα τμήματα της εισόδου μια τυχαία ευθύγραμμη πήχη η οποία θα ακουμπά στα
ήδη καρφωμένα πλαϊνά της βάσης ‘
Τα πλαϊνά της εισόδου τμήματα θα τοποθετηθούν στην βάση με
κόλλα και βίδες 3,0Χ30mm
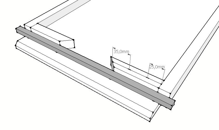
αφού πρώτα ξετρυπήσουμε τα τμήματα σε σημεία που απέχουν 20mm από το ίσιο άκρο και 35mm από το άκρο με γωνία 45ο
(σχέδιο)
Τα πόδια της βάσης είναι αυτά που θα τοποθετηθούν και θα
ολοκληρωθούν οι εργασίες κατασκευής της βάσης
. Θα τοποθετήσουμε τα πόδια στην βάση έτσι ώστε αυτά να εφάπτονται στο
πίσω μέρος της και σε απόσταση 40mm από την πλαϊνή πλευρά
της και θα τα σταθεροποιήσουμε εκεί
(σχέδιο) .
Οι βίδες των 35Χ3,5mm , που έχει υπολογιστεί να πέσουν στο κέντρο του
40Χ40mm ποδιού από κάτω
, θα ξεκινούν 20mm από
τις δύο εσωτερικές πλευρές και θα απέχουν περίπου 108mm μεταξύ τους αν χρησιμοποιήσουμε πέντε
(σχέδιο).
Στην τοποθέτηση αυτή δεν θα
χρησιμοποιήσουμε κόλλα για να μπορούμε εύκολα να αντικαταστήσουμε τα πόδια αν
χρειαστεί στο μέλλον .
Σχόλιο:
Η κατασκευή μιας κλειστής βάσης κυψέλης που στήνεται γύρω
από μια σταθερή και γωνιασμένη επιφάνεια
κόντρα πλακέ είναι εύκολή εργασία και
δεν απαιτεί να εργαστούμε σε γωνιάστρα .















Δεν υπάρχουν σχόλια:
Δημοσίευση σχολίου